Our
new building
Dear guests,
2024 will probably be the most exciting hotel year that we, Nils and Jessica Fuhrhop, will experience with our children, Leni and Maila. But it won’t just be an exciting time for us. Senior boss Udo and his partner Daniela Hounsell and our entire team at the Ringhotel Forellenhof are also looking forward to the “new wellness area” project and the construction of a new hotel wing with 36 new 4-star rooms with big eyes and full of anticipation.
Fritz Fuhrhop used to say that if you don’t move with the times, you move with the times. Throughout all generations, this saying has become established and is lived by. With this year’s completion of the 9-year planned new building, we are not only setting an example for our family tradition, which has existed for over 300 years, but are also setting an example for you as guests and lovers of our hotel.
You …
And all other points that come to your mind as a repeat or new guest to our house.
And that’s not all.
From 09.12.2024 onwards, you can relax in our unique wellness area, enjoy the tranquillity of the surrounding nature and treat yourself to a touch of luxury with one of our spa treatments. And all this in combination with the points just mentioned. Because even though we are setting new goals and standards with the new building, we remain “us”, the Fuhrhop family with a tradition behind us.
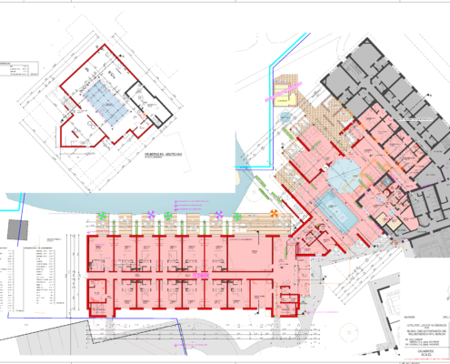
On an area of 750 m², we are building a wellness landscape with indoor and outdoor saunas, an outdoor whirlpool, a unique sauna garden right next to a beautiful pond landscape, as well as an indoor pool. Not a high-fancy wellness temple, but a cozy, down-to-earth and personal wellness experience, always with nature in mind. That is what we want to offer you. And we want you to want for nothing. Whether it’s massages, beauty and cosmetic treatments, couple’s treatments or yoga sessions, you can experience and enjoy all of this with us. Would you like to check into one of our new rooms after a long day of wellness and let your gaze wander over our beautiful pond area? No problem in our new hotel wing with a view of this very area.
And if you are now curious, why not jump straight into our construction diary and follow the current status or take a walk around our site and then enjoy a tasty treat in our restaurant. There is always something new and exciting to observe on our construction site.
If you already know that you would like to be one of the first to experience this, here is a little foretaste of our wellness arrangements.
We are looking forward to the 09.12.2024 full of energy and anticipation and look forward to welcoming you until then, but at the latest from the reopening.
Your Fuhrhop family and team















