Unser
Neubau
Liebe Gäste,
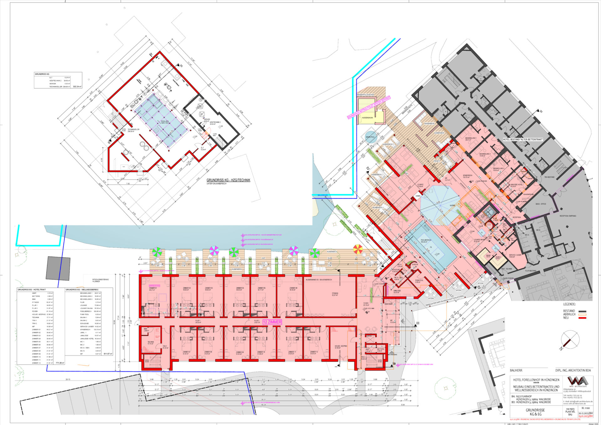
2024 wird das wohl aufregendste Hoteljahr, was wir, Nils und Jessica Fuhrhop mit unseren Kindern, Leni und Maila erleben werden. Aber nicht nur für uns wird es eine aufregende Zeit. Auch Senior Chef Udo mit Lebensgefährtin Daniela Hounsell und unser gesamtes Team vom Ringhotel Forellenhof sehen mit großen Augen und voller Vorfreude dem Projekt „Neubau eines Wellnessbereiches“, sowie der Bau eines neuen Hoteltraktes mit 36 neuen 4 Sterne Zimmern entgegen.
Schon Fritz Fuhrhop hat immer gesagt, wer nicht mit der Zeit geht, geht mit der Zeit. Durch alle Generationen hat sich dieser Spruch etabliert und wird gelebt. Mit der diesjährigen Fertigstellung des 9 Jahre geplanten Neubaus, setzen wir nicht nur für unsere Familientradition, die seit über 300 Jahren besteht, ein Zeichen sondern setzen auch ein Zeichen für Sie als Gäste und Liebhaber unseres Hotels.
Sie …
Und alle weiteren Punkte, die Ihnen als Widerholungstäter oder auch neuer Gast zu unserem Haus einfallen.
Und damit nicht genug.
Denn ab dem 09.12.2024 können Sie sich in unserer einzigartigen Wellnesslandschaft entspannen, die Ruhe der umliegenden Natur dabei genießen und sich bei einer unserer Spa-Anwendungen ein Hauch von Luxus gönnen. Und das alles in Kombination mit den eben genannten Punkten. Denn auch wenn wir mit dem Neubau neue Ziele und Ansprüche setzen, bleiben wir „wir“, eben die Familie Fuhrhop mit einer Tradition dahinter.
Auf 750 m² Fläche errichten wir eine Wellnesslandschaft mit Innen- und Außensauna, Außenwhirlpool, einem einzigartigem Saunagarten direkt an einer wunderschönen Teichlandschaft, sowie einem Indoorpool. Kein High Fancy Wellnesstempel, sondern ein gemütliches, stets die Natur im Auge, bodenständiges und persönliches Wellnesserlebnis. Das ist es, was wir Ihnen bieten möchten. Und dabei soll es Ihnen an nichts fehlen. Ob Massage, Beauty- und Kosmetikbehandlungen, Paaranwendungen oder Yogaeinheiten, all das können Sie ab dem 09.12.2024 bei uns erleben und genießen. Sie möchten nach einem langen Wellnesstag in einem unserer neuen Zimmer einchecken und den Blick auf unsere wunderschöne Teichanlage schweifen lassen? Kein Problem in unserem neuen Hoteltrakt mit Blick auf eben genau diese Anlage.
Und wenn Sie jetzt neugierig geworden sind, hüpfen Sie doch direkt in unser Bautagebuch und verfolgen den aktuellen Stand oder kommen Sie auf einen Spaziergang in unserer Anlage vorbei und genießen danach noch einen Gaumenschmauß in unserem Restaurant. Es gibt immer etwas Neues und Spannendes zu beobachten auf unserer Baustelle.
Sie wissen schon jetzt, dass Sie unbedingt eine/r der/die ersten sein möchte, der/die das erleben darf, dann haben Sie hier kleinen Vorgeschmack auf unsere Wellnessarrangements.
Wir blicken voller Tatendrang und Vorfreude dem 09.12.2024 entgegen und freuen uns sie bis dahin, aber spätestens ab Neueröffnung bei uns begrüßen zu dürfen.
Ihre Familie Fuhrhop mit Team

















